Gaulihütte SAC

  • Beton
  • Holz
  • Kultur
  • Landschaft
  • Projekt
  • Umbau
  • Wohnen
Arcollage Gaulihuette SAC Modell
Arcollage Gaulihuette SAC Situationsplan
Bauherrschaft

SAC Sektion Bern

Auftragsart

Studienauftrag im Einladungsverfahren, 2. Preis

Planung

2018

Bauherrschaft

SAC Sektion Bern

Auftragsart

Studienauftrag im Einladungsverfahren, 2. Preis

Planung

2018

In der vom Gletscher gezeichneten kargen Landschaft markiert die Gaulihütte den Abschluss einer Moräne. Die 1895 erbaute, 1939 umgebaute und 1978 mit einem Zwischenbau und einem grösseren Volumen erweiterte Hütte fügt sich zu einem atmosphärischen, fein auf die Topografie abgestimmten Ganzen zusammen. Drei Bauten, drei Zeiten, drei Materialien, eine Landschaft. Die Faszination für das Ensemble beruht einerseits auf der einfachen Typologie, Konstruktion und Materialisierung der sorgfältig erhaltenen schützenswerten Hütte aus der Pionierzeit des Alpinismus. Andererseits besticht das Gesamtbild mit den Erweiterungsbauten durch seine Selbstverständlichkeit in der Volumetrie, im Umgang mit Formen und Materialien. Diese Haltung gilt es kritisch zu würdigen und zukunftsfähig zu schärfen.

Arcollage Gaulihuette SAC Skizze Ankommen

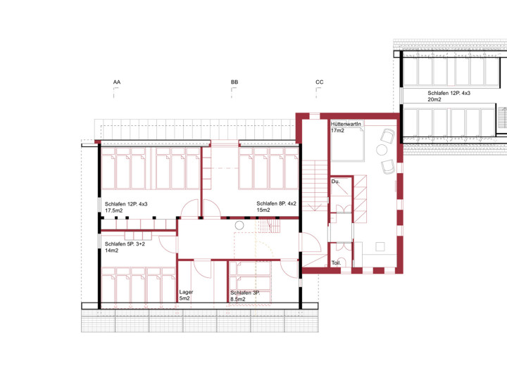
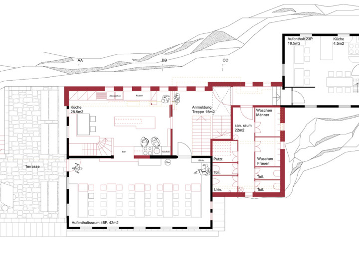
Die neuen Eingriffe beschränken sich denn auch hautsächlich auf Teile, die gestalterisch, technisch und betrieblich weniger überzeugen. Dies betrifft insbesondere den heutigen Zwischenbau, der durch einen Neubau ersetzt wird. Damit können wichtige programmatische Punkte kombiniert und elegant gelöst werden: die Erschliessungssituation mit Eingang, Treppe und Anmeldung, technische Installationen mit den gesamten Sanitäranlagen sowie der Hüttenwartsbereich. Zwei gezielte Interventionen am Gebäude von 1978 ermöglichen weitere notwendige Massnahmen. Mit der südwestseitigen Erweiterung des Sockelbereichs (und einem direkten Treppenzugang von der Küche) können Lager und Gebäudetechnik optimal ergänzt und ausgestattet werden. Mit der zusätzlichen nordwestseitigen Raumschicht im Erdgeschoss wird einerseits die Küche vergrössert und betrieblich aufgewertet. Andererseits kann gleichzeitig die mangelhafte Aussenwandkonstruktion in diesem Bereich verbessert werden und lassen sich die Proportionen des Gebäudevolumens harmonischer gestalten.

Arcollage Gaulihuette SAC Schnitt
Arcollage Gaulihuette SAC Grundriss EG

Zurückhaltende Eingriffe in die Landschaft und den Gebäudebestand sollen die neuen Interventionen bewusst erst auf den zweiten Blick zu erkennen geben. Bei neuen Gebäudeteilen werden die gestaltbildenden Elemente des Bestandes sanft neu interpretiert. Bestimmende Faktoren sind insbesondere die Anschlüsse an das Gelände, die Proportionen der Bauteile, die Dachneigung, die räumliche und tektonische Gliederung mit feinen horizontalen und vertikalen Vor- und Rücksprüngen sowie die Materialisierung. Dabei wird der Sockel aus Stein und verputztem Porenbetonstein geflickt, ergänzt und neue Teile betoniert. Mit der Weiterführung der Holzschindelung an den Aussenwänden behält das Ensemble seinen spezifischen Charakter. Einzig auf der Nordwestseite werden beim neuen und erweiterten Gebäudeteil die strukturierten Blechverkleidungen der Dächer an der Fassade kapuzenartig heruntergezogen. Durch die veränderte volumetrische Gewichtung und rhythmische Setzung werden sowohl Einzelbau als auch Ensemble gestärkt. Die denkmalgeschützte alte Hütte bleibt auch als kleinstes Gebäude durch die Verortung sowie die strukturelle und materielle Ausbildung einzigartig und erkennbar.

Arcollage Gaulihuette SAC Skizze Eingang
Arcollage Gaulihuette SAC Grundriss OG