zur Projekt-Übersicht

Schule Rüegsauschachen

  • Bildung
  • Holz
  • Realisiert
  • Suburban
Arcollage Schule Rüegsau 1
Arcollage Schule Rüegsau 10
Adresse

Gempenstrasse 1, 3415 Rüegsauschachen

Bauherrschaft

Einwohnergemeinde Rüegsau

Auftragsart

Dienstleistungswettbewerb

Planung

2014–2021

Ausführung

2021–2022

Planungsteam
  • Bürgi Schärer Architekten / Arcollage, Bern
  • Nydegger + Finger, Bern
  • holzprojekt, Bern
  • Strahm, Ittigen
  • Probst + Wieland, Burgdorf
  • Boess + Partner, Bern
  • Klötzli Friedli Landschaftsarchitekten, Bern
  • Energie hoch drei, Bern
Label

Plusenergie

Fotos

Alexander Gempeler, Bern

Adresse

Gempenstrasse 1, 3415 Rüegsauschachen

Bauherrschaft

Einwohnergemeinde Rüegsau

Auftragsart

Dienstleistungswettbewerb

Planung

2014–2021

Ausführung

2021–2022

Planungsteam
  • Bürgi Schärer Architekten / Arcollage, Bern
  • Nydegger + Finger, Bern
  • holzprojekt, Bern
  • Strahm, Ittigen
  • Probst + Wieland, Burgdorf
  • Boess + Partner, Bern
  • Klötzli Friedli Landschaftsarchitekten, Bern
  • Energie hoch drei, Bern
Label

Plusenergie

Fotos

Alexander Gempeler, Bern

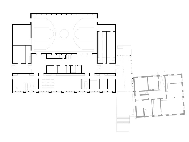
Die Schulanlage ist mit dem Dorf Rüegsauschachen gewachsen und als selbstverständlicher Teil der kleinmassstäblichen Siedlungsstruktur mit dem Aussenraum vernetzt. Das denkmalpflegerisch als erhaltenswert eingestufte Schulhaus von 1919, der prägnante Erweiterungsbau von 1955 und der eigenständige Gebäudekomplex von 1973 sowie zwei provisorische Modulbauten widerspiegeln die Dorfschulgeschichte.

 

Arcollage Schule Rüegsau 4
Arcollage Schule Rüegsau 14
Arcollage Schule Rüegsau 5
Arcollage Schule Rüegsau 2
Arcollage Schule Rüegsau 3
Arcollage Schule Rüegsau 15

Detailbeschrieb

Verschiedene Machbarkeitsstudien zur Sanierung und Erweiterung der Schulanlage zeigten sowohl Bedarf als auch Potenzial. Nach einem Dienstleistungsverfahren mit mehreren Architekt:innen wurde schliesslich das Szenario eines Ersatzneubaus anstelle der 1955-Erweiterung realisiert: Das Gebäude mit 12 Klassenzimmern, 4 Gruppenräumen, Spezialräumen für die Sekundarstufe, multifunktionaler Sporthalle sowie einem von allen Stufen genutzter Lehrer:innenbereich ergänzt damit die Gesamtanlage zukunftsfähig weiter und fügt sich betrieblich, räumlich und gestalterisch in das Ensemble.

Das neue Schulgebäude in Holzbauweise sucht mit seinem klaren strukturellen Aufbau und tektonisch fein ausformulierten Fassade eine selbstverständliche, ruhige Gesamtwirkung und schafft eine starke Verortung. Ein als Holzkonstruktion ausgeführter offener Verbindungsbau verknüpft den neuen Neubau mit dem Bestandsbau und erweitert das Aussenraumangebot auf mehreren Ebenen. Sowohl aussen als auch innen wird das Gebäude von einem 1-Meter-Raster gegliedert; in der Sporthalle weitet sich das Raster auf 2 Meter. Die sichtbare Rahmenkonstruktion prägt die Innenräume, die Decken sind als Holz-Beton-Verbund-Konstruktion ausgeführt und das Dach als Rippenkonstruktion. Die Aussteifung erfolgt über die Innen- und Aussenwände.

Die Kombination von Turnhalle und Schulräumen in einem einzigen Neubauvolumen ermöglicht räumliche, betriebliche und infrastrukturelle Synergien und erreicht ein ökonomisches Flächenverhältnis von Gebäudehülle und Geschossfläche. Den erhöhten Anforderungen an die Akustik kann dank den heutigen Möglichkeiten der Schallentkoppelung im Holzbau Rechnung getragen werden. Das Energiekonzept erreicht mit einer Grundwasserwärmepumpe und Photovoltaikanlage den Plusenergie-Standard; zudem versorgt die PV-Anlage auf dem Dach die bestehenden Schulgebäude auf dem Areal. Nach dem Grundsatz eines bedarfsgerechten Einsatzes der Technik erfolgt die Nachtauskühlung über die Oblichter im Treppenhaus sowie CO2-gesteuerten Fenstern und Oblichtern in der Turnhalle. Einzig die Klassenzimmer sowie die Nasszellen verfügen über eine mechanische Lüftung.

Arcollage Schule Rüegsau 7
Arcollage Schule Rüegsau 12
Arcollage Schule Rüegsau 9
Arcollage Schule Rüegsau 11
Arcollage Schule Rüegsau 8
Arcollage Schule Rüegsau 6